Уређај за заштиту уземљења неутралне тачке трансформатора серије ГВ13 који производи Лугао је дизајниран да заштити изолацију неутралне тачке трансформатора од пренапона грома, комутационог пренапона и (прелазног) пренапона фреквенције струје. Лугао има професионалну производну опрему и богато искуство у извозу, а залиха се може брзо испоручити.
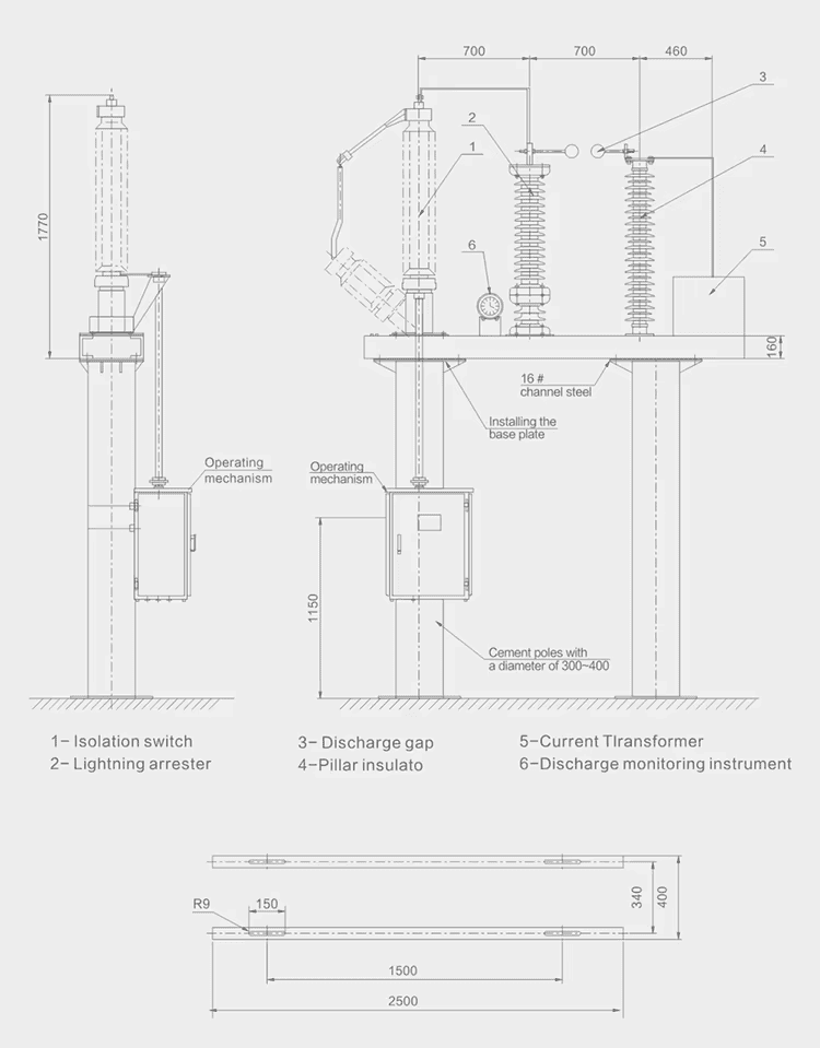
Лугао ГВ13 серија трансформатора од пренапона неутралне тачке се првенствено користи у круговима неутралне тачке енергетских трансформатора од 110 кВ и 220 кВ. Они штите изолацију неутралне тачке трансформатора од оштећења од пренапона и омогућавају трансформатору да прелази између уземљеног и неуземљеног режима рада неутралне тачке. Када је потребна истовремена заштита од пренапона грома, фреквенције струје и склопних пренапона, размак и одводник могу бити повезани паралелно ради заштите. Заштитник од пренапона неутралне тачке серије ГВ13 је комплетан сет који интегрише растављач, одводник цинк оксида, празнину и струјни трансформатор. Одликује га висок топлотни капацитет и одличну заштиту, флексибилне конфигурације и једноставност употребе. Дизајн чистог зазора или комбинација растављача и испусног отвора може се изабрати да задовољи потребе корисника.
Техничке спецификације уређаја за заштиту ГВ13
| лт |
Јединица |
Аргумент |
||
| Модел производа |
|
Лугао-гв13-110 |
Лугао-гв13-220 |
|
| Називни напон |
КВ |
110 | 220 | |
| Издржљиви напон неутралног трансформатора |
Муња пун и прекинут отпорни напон (врх) |
КВ |
250 | 400 |
| 1мин фреквенција напајања (ефективна вредност) |
КВ |
95 | 200 | |
| Неутрални изолациони прекидач |
Називна струја |
A | 630 | 630 |
| Оперативни механизам |
|
ЦС14Г (ручно) или ЦЈ2 (електрични) |
||
| Одводник цинк оксида |
Називни напон (РМС) |
КВ |
72 | 144 |
| Континуирани радни напон |
КВ |
58 | 116 | |
| ДЦ 1мА референтни напон |
КВ |
103 | 205 | |
| Заостали напон импулсне струје грома |
КВ |
186 | 320 | |
| Пражњење празнина |
Опсег растојања између електрода |
мм | 90-150 | 220-320 |
| Опсег напона пражњења фреквенције снаге |
КВ |
50-83 | 100-166 | |
| 1.2/50ус импулсни напон пражњења |
КВ |
120-190 | 250-320 | |
| Струјни трансформатор |
Тип |
|
Епоксидна смола изливена потпуно затворени стуб типа 10кв |
|
| Однос трансформације |
|
100/5,200/5,300/5.40015.50015.600/5 |
||
